Resthof - teilsaniert, mit vielen Gestaltungsmöglichkeiten in Hesedorf
Beschreibung:
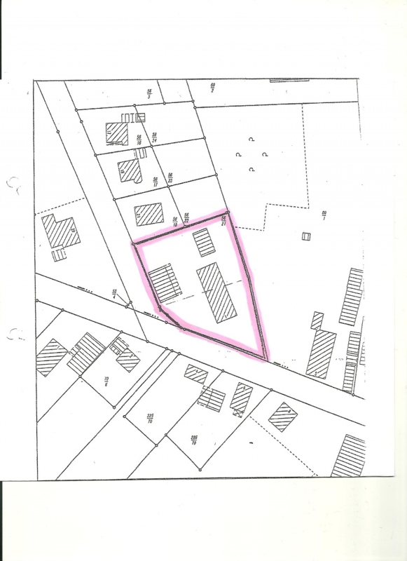
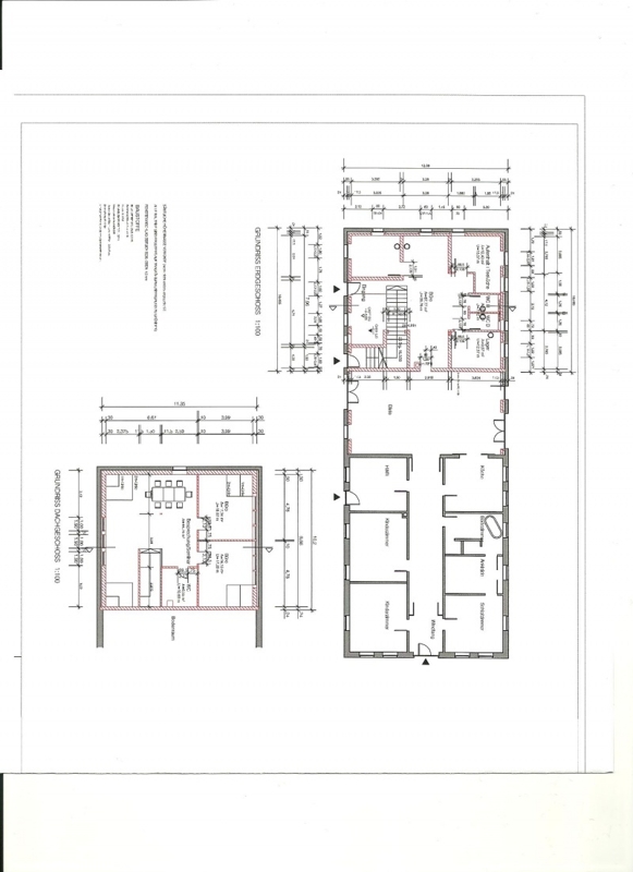
Bei dem hier angebotenen Resthof handelt es sich um ein altes Bauernhaus aus dem Ursprungsjahr 1913. Dieses wurde komplett entkernt. Das Außenmauerwerk wurde originalgetreu wieder in Stand gesetzt. Fenster und Türen sind durch neue ersetzt worden ohne die Optik und den Charm des Hauses zu zerstören. Der gesamte Bau ist zusätlich von innen gedämmt. Hierzu wurde eine zehn Zentimeter Dicke Isolierungsschicht aufgebracht und eine Innenmauer aus Ytong-Stein vorgemauert. Raumeinteilungen durch Zwischenwände und eine Zwischendeckenisolierung ist in broßen Bereichen des Erdgeschosses vorhanden. Der ehemalige Stalltrakt ist durch Seitengiebel vergrößert und neu Eingedeckt worden. Insgesamt befindet sich das Objekt im Rohbau, sodass eine individuelle Nutzungsanpassung leicht möglich ist. Strom-, Wasser-, Abwasser-, und Heizungsleitungen sind teilweise bereits verlegt. Nutzung als Einfamilien- oder Mehrfamilienhaus, sowie in Teilbereichen als Gewerbeeinheit möglich. Auf dem ca. 3.630 m² großen Gründstück steht zusätzlich eine gut erhaltene Scheune mit großem Tor und Vordach, sowie ein kleines, massives Stallgebäude in nicht sehr gutem Zustand.Lagebeschreibung:
Das Bauernhaus befindet sich in dem beschaulichen Ort Hesedorf bei Gyhum. Hesedorf liegt zwischen den Orten Zeven, Scheessel und Gyhum welche alle in wenigen Minuten mit dem Auto zu erreichen sind. Durch die neue Autobahnauffahrt Elsdorf ergiebt sich eine schnelle Zuwegung zur A1 und somit eine gute Erreichbarkeit der Großstädte Hamburg und Bremen.Ausstattung:
Energieausweis:
Sonstige Angaben:
Alle Daten und Informationen zum Objekt beruhen auf Angaben des Eigentümers. Irrtum vorbehalten.Der Käufer zahlt im Erfolgsfall an das RE/MAX
Immobilienbüro eine Käuferprovision von 3,57%
inklusive Mehrwertsteuer. Die Provision errechnet sich
aus dem beurkundeten Kaufpreis.





